Im Fluss der Ideen
Es war mehr als ein Umzug, es war eine symbolträchtige Heimkehr. Dort, wo vor mehr als dreissig Jahren die Bellevue Group in Zürich gegründet wurde, hat der Asset-Manager im Januar 2025 erneut seinen Hauptsitz bezogen. Für die Gestaltung der Büroflächen auf vier Etagen liess sich die Integral design-build AG vom Firmenauftritt und vom nahen See leiten.

Gleich als publik wurde, dass das Globus-Gebäude am Zürcher Bellevue umgebaut und für neue Mieter offen sei, machte sich freudige Erwartung in der Führung der Bellevue Group breit. 1993 war der Asset-Manager in dem Haus, das 1973 als Waren- und Bürohaus errichtet wurde, gegründet worden und wirkte zehn Jahre lang von seinem dortigen Hauptsitz aus. Dann zog der Finanzdienstleister nach Küsnacht um. Doch der Firmenname zeugte weiterhin von einem der schönsten Plätze Zürichs. Seit Januar 2025 lautet die repräsentative Adresse nun wieder Theaterstrasse 12 im Zürcher Kreis 1. Die neuen Büros für die rund achtzig Mitarbeitenden des Unternehmens erstrecken sich auf 1750 Quadratmetern, die über vier Etagen verteilt sind.


Vom Farbenspiel des nahen Sees inspiriert
Bereits an der Rezeption im fünften Stock wird die Nähe zum See referenziert – etwa mit organischen Formen oder schillernden Kettenvorhängen, die an eine spiegelnde Wasseroberfläche in der Sonne erinnern und so angeordnet sind, dass sie über dem Empfang eine kuppelartige Wirkung erzeugen. Die Farbgebung ist aber auch an das blaue Logo der Bellevue Group angelehnt, das als Gestaltungselement im Interior immer wieder auftaucht. Kein Wunder, war der Arbeitstitel für das Projekt bei der Integral design-build AG, die als Gesamtleisterin für den Innenausbau und die Möblierung verantwortlich zeichnet, «Lake Bound». «Vor einigen Jahren haben wir den Standort der Asset-Manager in Zug gestaltet. Daher war das Vertrauen in uns gross, und wir hatten freie Hand bei der Konzeptentwicklung. Von der ersten Idee über das Grund-, Farb- und Materialkonzept bis hin zu Submission, Planung und Einzug dauerte es etwa ein Jahr», sagt Kerstin Schuller, Projektleiterin bei Integral. «Wir folgen als Team immer einer festgelegten Strategie und betrachten funktionale, aber auch emotionale Aspekte», erläutert sie den Ablauf.
Fabian Stabler, COO der Bellevue Group, betont genau diese emotionale Komponente: «Für uns und unsere verschiedenen Anspruchsgruppen hat sich mit dem Einzug ein Kreis geschlossen. Die Büros sind ein Statement und ein starker Kontrast zu der alten umgebauten Fabrik, wo das Unternehmen die letzten zwanzig Jahre verbracht hat», sagt er. Zudem erzeuge die neue Location mitten im pulsierenden Zürich mehr Nähe zu Kunden, Investoren und Geschäftspartnern: «Von hier aus kann man optimal netzwerken.» Die grösste Herausforderung seien die Logistik und das Timing gewesen. Damit innerhalb von drei Tagen ein nahtloser Übergang vom vorherigen Standort gelingen konnte, musste eine exakte Planung eingehalten werden, die sich ein bisschen wie eine Feuerwehrübung angefühlt habe. Doch als die Mitarbeitenden die neuen Büros betraten, gab es niemand, der nicht beeindruckt war. Auch Kundinnen und Kunden sind neugierig und melden sich rege zu Besuchen an. «Der individuelle und hochwertige Stil sollte unsere Firmenidentität spiegeln und überall spürbar sein», so Fabian Stabler. «Wir wollten keine Nullachtfünfzehn-Einrichtung und waren offen für die Vorschläge von Integral.»
Fliessende Übergänge bei geringer Lärmausbreitung
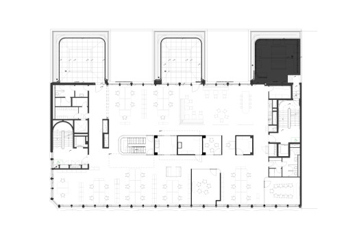
Die gesamte fünfte Etage ist für Kundenmeetings reserviert und bietet eine phänomenale Aussicht über den Sechseläutenplatz hinweg zum See, die dank einer langen Terrasse von diversen Blickwinkeln aus genossen werden kann. Die zwei grosszügigsten Sitzungszimmer sind mit Beschallungssystem, Grossbildschirmen sowie hochwertigen Mikrofonen ausgestattet und können einfach zu einem Auditorium mit Platz für sechzig Personen zusammengelegt werden. An der Decke wurden neben Kühlsegeln auch Akustikpaneele montiert. Sie ermöglichen, was bisher ausserhalb stattfand: Ein- bis zweimal pro Monat veranstaltet die Bellevue Group ihre Events nun in den eigenen Räumen. Tische, Stühle und Rednerpult können in einem Nebenraum eingelagert werden.
Die Mitarbeitenden aus dem Portfoliomanagement arbeiten ein Stockwerk tiefer. Ihr Grossraumbüro unterteilen blockweise in der Mitte angeordnete Sitzungszimmer. So bleibt ein reger Austausch innerhalb des Teams bei geringer Lärmausbreitung möglich. Daneben liegt ein sogenanntes Lieblingszimmer zum ungestörten Telefonieren, das mit einem Drehsessel und Teppichboden ausgestattet ist. Wer mehr Privatsphäre wünscht, der kann – wie in allen anderen verglasten Sitzungszimmern – bodenlange Vorhänge mit einem Farbverlauf in hellen Blaugrün-Nuancen zuziehen. «Die Flächen am alten Standort in Küsnacht waren sehr offen. Eine wichtige Vorgabe an uns lautete darum, den Lärmpegel deutlich zu reduzieren. Das ist unter anderem mit abgeschallten Doppelboden, Teppichen oder gewebten Vinylfliesen gelungen. Zusätzlich nehmen Wandverkleidungen aus recyceltem PET mit einer Vier-Zentimeter-Schaumstoffdämmung die hohen und tiefen Töne auf. Sitzungszimmer dienen als Trenner», erklärt Kerstin Schuller.
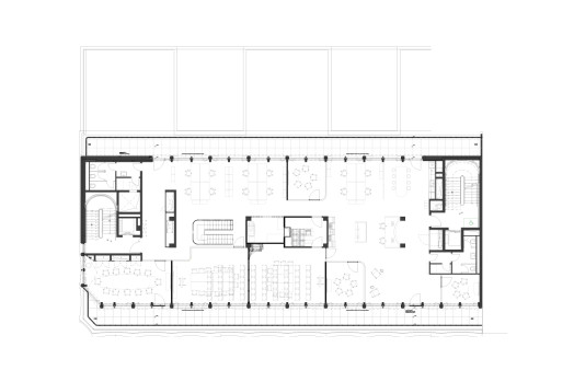
Auf der zweiten und dritten Etage reichen die Fenster nicht bis zum Boden, dafür gibt es auf beiden Geschossen grosszügige Hofterrassen. In der Mitte jedes Stockwerks bildet die sogenannte Servicezone einen räumlich, optisch und akustisch wirksamen Kern. Hier sind die Drucker, Altpapier- und Müllcontainer untergebracht, damit mehr Platz neben den Tischen bleibt und auch aus Gründen der Nachhaltigkeit. Auf der dritten Etage gibt es für Besprechungen zudem zwei separate Sitzungszimmer, deren abgerundete Glaswände die sonst lineare Grundrissordnung aufbrechen.


Bestehendes Mobiliar wurde wiederverwendet
Der Aufenthaltsraum samt Küche zur Hofseite hin wurde schnell zu einem weiteren Favoriten. Auf dem Terrazzofliesenboden steht eine breite Bar, die von Glaskugellampen beleuchtet wird. Dieselben mundgeblasenen Leuchten von Bocci kommen auch über der Treppe, welche die Stockwerke intern verbindet, zum Einsatz und sind wie im Wasser aufsteigende Luftblasen montiert. «Die gesamte Beleuchtung basiert auf diesem Konzept. Die Decken über den langen geraden Gängen etwa werden durch das warme, in Wellenlinien geführte LED-Licht aufgewertet», sagt Kerstin Schuller. Die eindrucksvolle Treppenkonstruktion besteht aus reinweiss pulverbeschichtetem Stahl mit Füllelementen aus Glas. Die Tritte sind rundum mit Eichenparkett verkleidet. Über sie gelangen Sportliche vom dritten bis ins fünfte Obergeschoss oder umgekehrt.
Vis-à-vis des Treppengeländers im dritten Stock stehen algenblaue Rückzugsnischen von Vitra. Sie stammen – wie ein Grossteil des Mobiliars – aus dem Bestand. «Der Auftraggeber legte Wert darauf, seine hochwertigen Möbel wiederzuverwenden. Für die Sitzungszimmer haben wir bestehende Vollholztische von Mobimex vom Schreiner abschleifen und heller lasieren lassen. So passen sie hervorragend zur übrigen Einrichtung und entsprechen dem Re-use-Wunsch», erklärt Kerstin Schuller.
Mit der Rückkehr ans Zürcher Bellevue holt das Unternehmen auch seine Mitarbeitenden aus der alten Post in Zug an den Hauptsitz nach Zürich. Sie beziehen Zweier- und Dreierbüros im zweiten Stock. Somit sind alle Angestellten wieder unter einem Dach vereint. «Wir sind glücklich, dass wir in dieser Umgebung das nächste Kapitel für die Bellevue Group aufschlagen können. Man darf die Arbeitsumgebung in einem KMU wie unserem, in dem man sich persönlich kennt und sich alle nahestehen, nicht unterschätzen. Der Standort ist prägend und wertvoll», sagt Fabian Stabler. Die Ausrichtung «back to the roots» verspricht die idealen Voraussetzungen für spannenden Fortschritt.













