Dans le flot des idées
Plus qu’un déménagement, c’était un retour aux sources. En janvier 2025, Bellevue Group a repris possession de son siège social à Zurich, à l’endroit même où le gestionnaire d’actifs voyait le jour il y a plus de trente ans. Pour l’aménagement des quatre étages, Integral design-build AG s’est inspiré de l’image de l’entreprise et du lac tout proche.

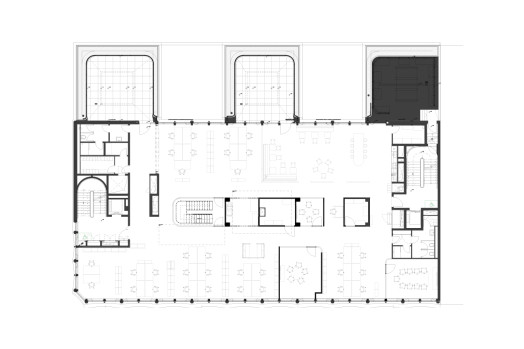
À peine annoncée la transformation du bâtiment Globus de la place Bellevue à Zurich, la perspective de surfaces locatives disponibles suscitait déjà l’enthousiasme de la direction de Bellevue Group. Né en 1993, le gestionnaire d’actifs a en effet passé ses dix premières années dans cet immeuble construit en 1973 pour abriter commerces et bureaux. Si cette société de services financiers s’est ensuite établie à Küsnacht, son nom continuait d’évoquer un des plus beaux endroits de Zurich. Depuis janvier 2025, on la trouve à nouveau à la prestigieuse Theaterstrasse 12, dans le 1er arrondissement de Zurich. Répartis sur quatre étages, les nouveaux bureaux des quelque quatre-vingts collaborateurs de l’entreprise occupent 1750 mètres carrés.


Le lac et ses couleurs comme inspiration
Dès la réception au 5e étage, les références au lac tout proche s’imposent. On découvre par exemple des formes organiques ou encore des rideaux de chaînettes scintillantes rappelant les reflets de l’eau sous le soleil et disposés de sorte à créer l’impression d’une coupole. La palette de couleurs reprend le bleu du logo de Bellevue Group, qui sert d’élément récurrent pour l’aménagement intérieur. Guère étonnant, alors, que le projet ait été intitulé «Lake Bound» par Integral design-build AG, prestataire global chargé de l’aménagement intérieur et de l’ameublement. «Il y a quelques années, nous avions agencé les bureaux zougois du gestionnaire d’actifs. L’entreprise avait donc pleinement confiance en nous et nous avions toute liberté pour élaborer le concept. De l’idée initiale à l’emménagement, il aura fallu près d’un an», retrace Kerstin Schuller, cheffe de projet chez Integral. Le travail de l’équipe suit toujours une stratégie bien définie qui intègre des éléments tant fonctionnels qu’émotionnels.
Fabian Stabler, COO de Bellevue Group, insiste lui aussi sur cette dimension émotionnelle: «Notre retour a fermé une boucle, pour nous comme pour nos parties prenantes. Ces bureaux sont une sorte de manifeste et contrastent fortement avec l’ancienne usine réaménagée où l’entreprise a passé les vingt dernières années», dit-il. Sans oublier qu’être en plein cœur de Zurich crée une plus grande proximité avec les clients, les investisseurs et les partenaires. «Ce lieu est l’endroit idéal pour entretenir ses contacts.» La logistique et le calendrier ont été les défis les plus complexes. Réussir à intégrer les nouveaux locaux en trois jours a nécessité une organisation millimétrée, qui n’était pas sans ressembler à un exercice de gestion de crise. Mais lorsque les équipes ont vu les nouveaux bureaux, tout le monde était impressionné. Les clients aussi ont hâte de découvrir le lieu et ils sont nombreux à annoncer leur visite. Pour Fabian Stabler, «le style élégant et soigné entend refléter notre identité visuelle et la rendre perceptible à tous les niveaux. Nous ne voulions pas d’un aménagement quelconque et étions ouverts aux propositions d’Integral.»
Transitions fluides et ambiances feutrées
Entièrement dédié à l’accueil de la clientèle, le 5e étage offre une vue splendide sur la Sechseläutenplatz et jusqu’au lac, que l’on peut admirer sous différents angles depuis une longue terrasse. Les deux salles de réunion les plus spacieuses, qui disposent d’un système de sonorisation, de grands écrans ainsi que de microphones de qualité, peuvent être regroupées pour former un auditorium de soixante places. En plus des voiles réfrigérantes, des panneaux acoustiques ont également été installés au plafond. Cet espace a permis d’organiser en interne les manifestations de Bellevue Group, qui se tenaient jusqu’alors une ou deux fois par mois en extérieur. Les tables, chaises et pupitres sont stockés dans un local attenant.
Les gestionnaires de portefeuille se trouvent un étage plus bas. Leur open space s’articule autour de salles de réunion agencées en blocs centraux, pour faciliter les échanges au sein de l’équipe tout en limitant le bruit. Juste à côté se trouve un coin cosy. Équipé d’un fauteuil pivotant et de moquette, il permet de s’isoler pour téléphoner. Pour encore plus de discrétion, on peut, comme dans toutes les salles de réunion vitrées, tirer les longs rideaux pleine hauteur dans un camaïeu bleu-vert aux tons pâles. «À Küsnacht, les anciens espaces étaient très ouverts. L’une des principales exigences était donc de réduire fortement le niveau sonore. Cela a notamment été rendu possible avec un faux-plancher insonorisé, de la moquette et des dalles en vinyle tissé. Par ailleurs, des panneaux muraux en PET recyclé composés d’une mousse isolante de 4 centimètres absorbent les fréquences basses et élevées. Les salles de réunion cloisonnent aussi l’espace», explique Kerstin Schuller.


Réutiliser le mobilier existant
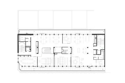
Les 2e et 3e étages ne bénéficient pas de fenêtres pleine hauteur, mais d’une vaste terrasse sur cour. Au centre de chaque étage, une zone de service remplit des fonctions structurantes, acoustiques et visuelles. Cet espace accueille les imprimantes, les bacs de collecte du papier et des déchets, pour laisser plus de place autour des postes de travail. Le 3e étage abrite également deux salles de réunion supplémentaires, dont les cloisons vitrées en courbe viennent rompre le côté rectiligne du reste de l’agencement. L’espace détente et cuisine côté cour est vite devenu l’un des endroits favoris. Éclairé par des suspensions sphériques Bocci en verre soufflé, un large bar surplombe un sol en terrazzo. Ces mêmes lampes flottent telles des bulles d’air dans l’escalier intérieur reliant les différents étages. «Tout l’éclairage repose sur ce concept. Une bande LED aux teintes chaudes suit un tracé ondoyant à travers les zones de circulation rectilignes et vient rehausser les plafonds», ajoute Kerstin Schuller. Le remarquable escalier se compose d’une structure en acier thermolaqué blanc pur et d’éléments de remplissage en verre, tandis qu’un parquet en chêne habille les marches. Les plus sportifs l’empruntent pour passer du 3e au 5e étage. Au 3e étage, des alcôves Vitra de couleur bleu algue font face à l’escalier. Elles proviennent, comme une grande partie du mobilier, des anciens bureaux. «Le client tenait à réutiliser son mobilier haut de gamme. Pour les salles de réunion, un menuisier a poncé les tables en bois massif de Mobimex, puis leur a appliqué une lasure claire. Cela a permis de créer une parfaite harmonie avec le reste du mobilier tout en répondant aux attentes de réemploi», précise Kerstin Schuller.
Le retour à la place Bellevue est aussi l’occasion pour l’entreprise de regrouper ses équipes au siège à Zurich en intégrant les effectifs de l’ancien site de Zoug. Tous les collaborateurs sont donc à nouveau réunis sous un même toit. «Nous sommes ravis de pouvoir entamer ici une nouvelle page de l’histoire de Bellevue Group. Il ne faut pas sous-estimer le cadre de travail dans une PME telle que la nôtre, où on se connaît personnellement et où tout le monde est proche. Il s’agit d’un emplacement de caractère à valeur forte», assure Fabian Stabler. Ce «retour aux sources» offre les conditions idéales pour envisager des avancées passionnantes.













