Un bâtiment scolaire en un temps records
Le Heilpädagogisches Zentrum Innerschwyz (HZI) se voit adjoindre un nouveau bâtiment scolaire pouvant accueillir douze classes. Une équipe dirigée par Halter a remporté en 2018 le concours portant sur les études et la réalisation du bâtiment. Grâce à la méthode de construction en bois préfabriquée et à la planification basée sur un modèle BIM tridimensionnel, le nouveau bâtiment sera prêt à temps pour la rentrée en août 2022, seize mois à peine après le premier coup de pioche.

Un chantier impressionnant a été dressé en novembre et décembre 2021 à Ibach, dans le canton de Schwytz, sous les yeux des élèves et du corps enseignant du Heilpädagogisches Zentrum Innerschwyz (centre médico-éducatif de Schwytz intérieur) : en l’espace de quelques semaines, les cinq étages de leur nouveau bâtiment scolaire ont poussé à toute vitesse sur le terrain voisin. A intervalles réguliers, un semi-remorque chargé de poutres et de poteaux en lamellé-collé, de parois en bois préfabriquées et de dalles de béton pour les plafonds d’étage faisait son apparition. Pour un seul étage, le matériel représentait au total quinze chargements de camion, et les éléments étaient assemblés sur place en une semaine par les charpentiers de l’entreprise de construction en bois Häring AG. La grue de chantier a soulevé environ 450 composants.
Plusieurs mois auparavant déjà, les arbres nécessaires à cette construction neuve avaient été abattus dans les forêts schwytzoises, coupés et séchés chez Schilliger Holz AG à Küssnacht am Rigi, puis transformés en éléments de construction finis chez Roth Burgdorf AG et Häring AG à Eiken, en Argovie. Ils ont ensuite entrepris leur voyage de retour vers le canton de Schwytz. Parallèlement, les ouvriers ont creusé la fouille sur place à partir d’avril 2021 et ont construit le sous-sol et le noyau du bâtiment en béton, de sorte que tout était prêt début novembre pour le montage de la construction en bois.
Un calendrier serré
Ce projet a été précédé en 2018 d’un concours en deux étapes portant sur les études et la réalisation organisé par le canton de Schwytz, avec six participants en phase finale. L’équipe composée de Halter en tant que prestataire global et développeur du projet, du cabinet d’architectes Lussi + Partner de Lucerne, de w + s Landschaftsarchitekten de Soleure et de l’entreprise de construction en bois Häring AG a réussi à l’emporter. La réalisation en bois et l’utilisation, autant que possible, de ressources sylvicoles du canton de Schwytz étaient des exigences du concours, tout comme le standard environnemental Minergie-A Eco.
« En construction massive classique, le calendrier serré pour la réalisation du nouveau bâtiment n’aurait pas été réalisable », explique Raphael Näf, chef de projet global chez Halter. En effet, le timing des travaux était sportif : le premier coup de pioche a été donné en avril 2021, afin que le bâtiment achevé puisse être remis au canton de Schwytz seulement seize mois plus tard, en juillet 2022, et que les cours puissent commencer le 22 août dans les nouveaux locaux. Pendant la courte période de construction, quelque 20 millions de francs seront dépensés et un volume de près de 20 000 mètres cubes ainsi que plus de 6000 mètres carrés de surface de plancher seront construits.


Deux fois plus d’élèves
Le centre médico-éducatif d’Ibach est l’un des deux établissements de ce genre du canton. Il accueille des enfants souffrant d’un handicap mental, physique ou multiple et est géré comme une école de jour. L’ancien établissement scolaire ne suffisait plus à satisfaire la demande. Le nombre d’élèves avait doublé depuis 1990 et une grande partie de l’enseignement devait être dispensée dans des locaux provisoires. En 2018, le canton a pu acquérir une parcelle adéquate à proximité immédiate du bâtiment scolaire existant. Le nouveau bâtiment accueille dix classes d’école et deux classes de jardin d’enfants pour un total de 60 à 70 enfants. Outre les salles de classe, les locaux comprennent également une salle de gymnastique, un réfectoire, des salles pour les cours de travaux manuels ainsi que l’administration scolaire et des espaces extérieurs avec des aires de jeux et de récréation.
La situation de départ du nouveau bâtiment a été particulièrement exigeante pour les planificateurs : par rapport à la surface du terrain, il fallait construire de vastes locaux tout en laissant suffisamment d’espace extérieur aux élèves. La situation en bordure de la très fréquentée Gotthardstrasse n’a pas non plus facilité les choses. « Pour laisser suffisamment d’espace libre, nous avons dû exploiter au mieux les volumes », déclare l’architecte Daniele Savi, copropriétaire de Lussi + Partner. Les architectes ont conçu un corps de bâtiment rectangulaire très compact d’une surface au sol de 900 mètres carrés avec quatre étages pleins et un dernier étage plus petit. Le positionnement du bâtiment en retrait de 8 mètres par rapport à la rue a permis d’une part de réduire les nuisances sonores dues à la circulation et d’autre part de créer autour du bâtiment un espace extérieur attrayant.
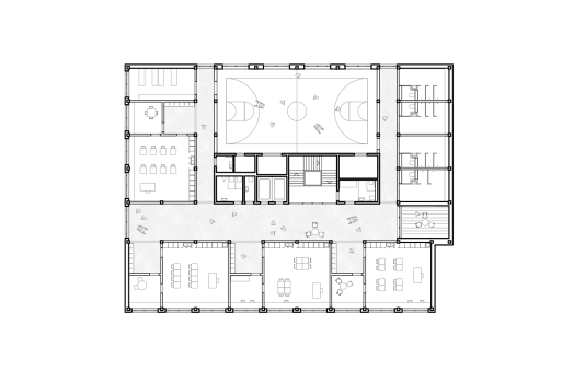
Le volume compact permet une organisation du plan qui se contente d’un minimum de surface de desserte : une seule cage d’escalier placée au centre du bâtiment et deux ascenseurs relient tous les étages. Des sanitaires et d’autres locaux annexes sont accolés à cette zone centrale. Le noyau du bâtiment est entouré d’un couloir qui dessert toutes les salles. Au rez-de-chaussée, un préau accueille les élèves. C’est ici qu’ils peuvent descendre des bus scolaires, à l’abri des intempéries. A côté du hall d’entrée, le rez-dechaussée abrite le réfectoire, l’accueil et deux classes de jardin d’enfants. Dans les quatre étages supérieurs se trouvent des salles de classe et des salles thérapeutiques. Le premier étage abrite également des salles pour les enseignants et le troisième étage la salle de gymnastique, dont l’espace s’étend en hauteur jusqu’au quatrième étage. Ce dernier offre également un toit-terrasse accessible aux personnes à mobilité réduite. Les salles pour les cours de travaux manuels ainsi que les locaux techniques et un petit garage pour les voitures sont situés au sous-sol. Les ateliers sont éclairés par un puits de lumière situé à l’avant.


Construction à ossature en bois et plafonds à structure hybride
Les cinq étages en bois ont été construits en ossature poteaux-poutres. Cela permet de positionner assez librement les parois intérieures et de les déplacer si nécessaire. Une structure quadrillée de 3,58 mètres constitue la base de l’ossature. « Notre objectif était de trouver une solution qui permette à la fois une répartition intelligente du plan et des dimensions économiques pour les plafonds », déclare Oliver Hasler, chef de projet chez Häring. Pour les plafonds, les spécialistes du bois ont choisi une structure hybride composée de poutres en bois de 40 centimètres de haut et d’une dalle préfabriquée en béton de 10 centimètres d’épaisseur. Sur place, celle-ci a été posée sur les poutres à l’aide d’une grue, puis solidarisée avec elles. « Les dalles peuvent ainsi absorber les forces horizontales et les transmettre au noyau massif du bâtiment », explique Oliver Hasler. Ainsi, aucun autre contreventement n’est nécessaire.
Cette méthode de construction hybride a non seulement permis de faire avancer les travaux rapidement, mais également d’économiser de la hauteur sous plafond. Ainsi, l’éclairage et les éléments suspendus pour l’isolation phonique trouvent leur place dans les espaces entre les poutres. « Cela nous a permis d’exploiter au mieux la hauteur légale autorisée et de réaliser un maximum d’étages. De plus, nous avons ainsi pu réduire l’empreinte du bâtiment sur le terrain », précise Simon Kellenberger, qui dirige le projet chez Lussi + Partner.
Les poteaux et les poutres en bois restent apparents dans le bâtiment fini, tout comme le bois brut sur les murs des couloirs qui contraste avec un revêtement en linoléum rouge. Les revêtements de sol des cages d’escalier sont de la même couleur. Dans les niches des vestiaires devant les salles de classe, la couleur change. Les panneaux encastrés de différentes couleurs servent de repères aux élèves et leur indiquent à quel étage ils se trouvent. Ainsi, chaque étage a sa propre couleur – le rez-de-chaussée est par exemple caractérisé par des vestiaires roses et le quatrième étage par des vestiaires bleus. « Les chiffres et les lettres ne fonctionneraient pas bien, car certains enfants ont des difficultés à les lire », explique l’architecte Simon Kellenberger. Les salles de classe, en revanche, sont aménagées de manière plus sobre. Le blanc et des teintes de gris plus ou moins claires y prédominent. Plus tard, l’ameublement et surtout les nombreux travaux de dessin et de bricolage des élèves apporteront de la couleur.
Le bois en tant que matériau de construction caractérise non seulement une partie de l’aspect intérieur du bâtiment, mais aussi les façades. Celles-ci sont composées d’éléments en bois habillés de planches enduites en vert – une protection contre les intempéries que l’on connaît des maisons en bois scandinaves, où elle est toutefois généralement de couleur rouge. La surface du bâtiment est structurée par une grille régulière de grandes zones vitrées fixes adjacentes à d’étroits volets d’aération opaques et à des bandeaux horizontaux en tôle claire. Des losanges sont placés entre les fenêtres en guise d’éléments décoratifs supplémentaires. Ils rappellent le style des constructions traditionnelles en bois. Au quotidien, les étroits volets d’aération sont rarement utilisés, car le bâtiment dispose d’une ventilation de confort. Celle-ci est reliée à un registre terrestre de 500 mètres de long situé sous le socle du bâtiment. L’air peut ainsi être prérefroidi en été et apporter une température agréable dans les pièces. En hiver, l’air froid entrant est préchauffé, ce qui permet d’économiser de l’énergie.
Visite virtuelle de la maquette numérique
Les délais très courts ont nécessité non seulement de préfabriquer une grande partie des composants, mais aussi de numériser la planification. Les architectes, les planificateurs de la construction en bois et les ingénieurs spécialisés en technique du bâtiment ont ainsi travaillé avec le Building Information Modeling (BIM). « Grâce à la maquette numérique en 3D, nous avons pu planifier directement sur ordinateur de nombreux éléments qui ne sont habituellement résolus en détail que sur le chantier », déclare Raphael Näf, chef de projet global chez Halter. La maquette en 3D a également été utile lors des réunions avec le maître d’ouvrage. Ce dernier pouvait se déplacer directement sur l’ordinateur à travers la maquette virtuelle du bâtiment, qui montrait déjà toutes les surfaces dans leur apparence prévue. « Cela a permis de prendre des décisions rapidement et à l’avance, par exemple pour déterminer la couleur des murs et des sols ou pour choisir les matériaux », explique l’architecte Simon Kellenberger.
Le 5 janvier 2022, le dernier élément en bois était monté dans la Gotthardstrasse à Ibach. A l’intérieur, les travaux de finition se sont poursuivis à un rythme effréné afin que le nouveau bâtiment scolaire soit prêt à temps pour la fin des vacances d’été. La première visite des locaux sera donc un grand moment, surtout pour les élèves.
Lussi + Partner AG
Fondé en 2014, ce cabinet d’architecture lucernois emploie une vingtaine de personnes. Son éventail de projets comprend des bâtiments résidentiels, commerciaux, hôteliers et scolaires dans toute la Suisse. Parmi les réalisations connues du cabinet, on peut citer la construction du nouvel hôtel Frutt Lodge & Spa à Melchsee-Frutt (2011), le lotissement Suurstoffi à Rotkreuz (2012), le nouveau siège principal des CFF à Berne-Wankdorf (2014) et la rénovation de la Bibliothèque centrale et universitaire de Lucerne (2019).
-> www.lussipartner.ch
w + s Landschaftsarchitekten AG
Ce cabinet d’architecture paysagère de Soleure a été fondé en 1983. La planification des espaces libres, l’architecture des jardins et l’aménagement paysager constituent autant de compétences clés de son équipe composée d’une bonne dizaine de personnes, qui a déjà remporté de nombreux prix. Le cabinet a notamment participé à l’aménagement de la place de la gare à Soleure, à la viabilisation du site d’Attisholz à Riedholz ainsi qu’au parc Bally à Schönenwerd.
-> www.wslarch.ch
Häring AG
L’entreprise, dont le siège se trouve à Eiken dans le canton d’Argovie, a été fondée il y a 140 ans comme une entreprise de construction en bois classique. Aujourd’hui encore, le bois en tant que matériau de construction est au coeur de l’activité de cette entreprise diversifiée, qui couvre tous les domaines de la construction, du développement immobilier à la rénovation de bâtiments existants, en passant par la réalisation en tant qu’entreprise générale. En plus de ses quatre sites en Suisse, Häring AG possède également des bureaux à Singapour et en Chine.
-> www.haring.ch













