Les deux font la paire
Depuis la crise immobilière des années 1990, les Futura Towers de Lupfig, en Argovie, sont en grande partie vides. Aujourd’hui, ces deux tours de bureaux orphelines sont repositionnées par la société Halter SA sous le nom de Futurama. Dans les années à venir, un centre de formation, de recherche et de production devrait voir le jour sur une surface d’environ 25 000 mètres carrés. Non seulement cette transformation progressive insufflera une nouvelle vie à ce lieu, mais la zone industrielle en pleine expansion qui l’entoure devrait également être dotée d’offres de loisirs et de restauration.






Les deux Futura Towers sont gigantesques et même un peu intimidantes. De loin, la fine structure des façades se perd dans leur taille imposante. Lorsqu’on s’approche, l’étroitesse des espaces extérieurs est déconcertante. Les véhicules peuvent y passer, mais il ne reste guère de place pour les piétons. L’intérieur des tours semble abandonné. Depuis leur construction, la plupart des onze niveaux supérieurs et des trois niveaux en sous-sol sont vides. Aucun revêtement de sol n’a été posé ni aucun éclairage installé. Seul un étage est éclairé par un interstice dans une cloison. Derrière se trouvent quelques salles de réunion et une réception qui donne l’impression que personne n’a été accueilli ici depuis longtemps.
Les Futura Towers de Lupfig ont été construites en même temps que deux autres tours, entre 1990 et 1992, sur un terrain vierge. Situé à proximité de l’autoroute A1, du futur raccordement à l’A3 et de la gare S-Bahn de Lupfig ouverte en 1994, le terrain était déjà très bien desservi à l’époque. Le boom des années 1980 avait sans doute suscité de l’espoir chez l’ancien propriétaire, qui n’a pas hésité à réaliser 25 000 mètres carrés de surface utile rien que dans les deux Futura Towers. Mais c’est alors qu’est survenu le crash immobilier suisse de 1991. Une grande partie des tours de bureaux n’a jamais été louée ni même aménagée.
Le propriétaire des Futura Towers n’était alors pas le seul à s’être trompé dans ses calculs. L’économie en plein essor faisait flamber les prix de l’immobilier et la spéculation sévissait. Des nouveautés réglementaires, telles que l’introduction du régime obligatoire des caisses de pension en 1985, et la pression croissante de la concurrence entre les banques, gonflèrent la bulle naissante. Des crédits étaient accordés de plus en plus facilement. Après avoir presque doublé en dix ans, les prix de l’immobilier augmentèrent encore entre 1987 et 1990.
Le krach boursier de New York en 1987 avait certes freiné le boom économique suisse. Pour en atténuer les effets et relancer l’économie, les banques suisses abaissèrent leurs taux d’intérêt. Cette mesure porta ses fruits, mais plus qu’espéré. L’inflation augmenta massivement. L’immobilier était considéré comme un placement sûr et gagna encore en popularité auprès des investisseurs. En 1989, la Banque nationale tenta finalement d’atténuer le renchérissement en relevant brusquement son taux directeur de 3,5 à 6%. Parallèlement, la Confédération prit des mesures d’urgence afin d’endiguer la spéculation. Les contre-mesures dépassèrent elles aussi largement leur objectif. La bulle éclata, les prix chutèrent, les crédits en souffrance durent être amortis. Résultat des courses : près d’un tiers des banques suisses ont fermé leurs portes, des entreprises de construction ont fait faillite, des épargnes privées ont été détruites. Le taux de vacance des immeubles commerciaux est passé à 12% en 1993. Tout juste achevées, les Futura Towers de Lupfig n’y ont pas fait exception.







L’Argovie, un canton industriel
Aujourd’hui encore, les tours sont en grande partie vides. Toutefois, la bonne desserte de leur emplacement prétendument périphérique n’est pas passée inaperçue. Des immeubles de bureaux, des bâtiments commerciaux et des centres de données sont construits tout autour. Diverses entreprises des secteurs de la production, de l’énergie, de l’alimentation et de l’importation de véhicules ont ouvert de nouveaux sites dans la zone industrielle de Lupfig ou ont agrandi des sites existants.
La société Suhner Suisse SA produit ici depuis des décennies, dans son siège principal de l’Industriestrasse, des pièces de machines de haute précision pour l’industrie automobile et aéronautique, entre autres. Depuis quelques années, elle loue également les deux rez-de-chaussée des tours 1 et 2, ainsi que la grande halle de production située entre les deux. Grâce à sa haute spécialisation et à la précision de ses produits, cette entreprise familiale de quatrième génération est active dans le monde entier. Sur son effectif total d’environ 750 personnes, 230 travaillent sur le site de Lupfig.
Suhner incarne ainsi le parfait exemple d’une entreprise argovienne. En effet, la proportion d’employés travaillant dans le secteur secondaire est presque deux fois plus élevée dans le canton (27%) que dans l’ensemble de la Suisse (14%), et plus de 80% des salariés sont employés dans des petites et moyennes entreprises, contre 67% dans l’ensemble du pays. L’Argovie reste donc un canton industriel de PME. Depuis le déclin massif dans les années 1970 et 1980, l’industrie suisse s’y maintient relativement bien – elle a trouvé ses niches. Il n’en reste pas moins que le nombre d’emplois dans le secteur de la production est en recul dans tous les cantons. La pression internationale de la concurrence et des prix augmente. L’industrie suisse est elle aussi soumise à la pression de l’innovation – elle doit reconsidérer des processus et des produits éprouvés ou les repenser intégralement. De nombreuses entreprises relèvent de l’industrie 2.0, car les chaînes de production nécessitent encore de très nombreuses interventions humaines manuelles. La production en série n’est que partiellement automatisée par des robots, ce que l’on appelle la troisième révolution industrielle ou l’industrie 3.0. Or aujourd’hui, on parle déjà d’une quatrième et d’une cinquième révolution industrielle : l’industrie 4.0 remplace la production de masse traditionnelle par la fabrication automatisée de produits uniques sur mesure, par exemple au moyen de l’impression 3D. L’industrie 5.0 annonce quant à elle une collaboration accrue entre les humains et les robots, ainsi qu’entre l’intelligence humaine et l’intelligence artificielle.
Les Futura Towers deviennent Futurama
Le deuxième sous-sol de la tour 2 abrite depuis mai 2022 Saeki Robotics, une entreprise de l’industrie 4.0 qui imprime des coffrages en béton pour la branche du bâtiment à l’aide d’un robot industriel géant. Cette start-up, une spin-off de l’EPF de Zurich, a développé une tête d’impression 3D ainsi que le logiciel correspondant. Alors que les coffrages convexes ou concaves devaient traditionnellement être fabriqués à la main en bois par des charpentiers pendant plusieurs jours, Saeki les imprime en quelques heures seulement dans un plastique spécial. N’importe quelle forme imaginable peut être imprimée – le temps de production dépend uniquement de la taille du coffrage. Les fabrications spéciales coûteuses comme des escaliers ou des plafonds voûtés en béton deviennent ainsi nettement moins chères.
L’arrivée de Saeki dans les Futura Towers n’est pas non plus passée inaperçue chez Suhner. La start-up a en effet donné envie à l’entreprise industrielle d’explorer les possibilités de l’impression 3D métallique pour ses produits. Des possibilités de collaboration sont d’ores et déjà évoquées.
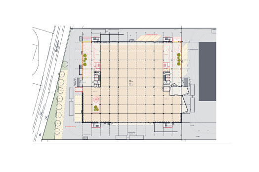
Si ces deux entreprises se sont rencontrées, c’est parce que Halter SA a acquis les Futura Towers début 2022. Depuis lors, le site est repositionné sous le nom de Futurama en tant que hub pour la formation, la recherche et l’industrie. Andreas Campi, directeur général de Halter Développements, et Alexandra Stamou, responsable Gestion des produits et de l’innovation, ont élaboré un concept en ce sens. Il prévoit la rénovation et l’extension progressives des bâtiments au cours des prochaines années, en fonction des besoins des nouveaux locataires. Cette transformation sur mesure des bâtiments devrait permettre au pôle d’innovation de croître de manière durable et organique. La proximité de la Haute école spécialisée du Nord-Ouest de la Suisse à Brugg et de l’Institut Paul Scherrer à Villigen devrait constituer un atout. L’objectif est de créer un hub vivant des industries 4.0 et 5.0, un lieu où les collaborateurs de différentes entreprises pourront échanger, créer des synergies et vivre l’innovation.
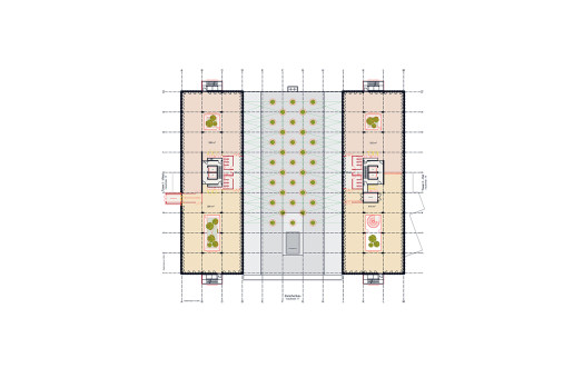
Les plafonds des onze étages supérieurs des bâtiments à ossature avec une trame de poteaux de 6 × 6 mètres doivent être percés sur deux ou trois niveaux afin d’offrir un meilleur éclairage. Un réaménagement des deux entrées existantes en foyers spacieux favorisera la création d’un site attractif. Par ailleurs, un espace vert vertical accessible entre les deux tours permettra d’améliorer la qualité de vie des usagers. Enfin, il est prévu de revaloriser les espaces extérieurs et l’accès au bâtiment. Alors que ces espaces étaient autrefois conçus pour les voitures (les trottoirs extérieurs sont totalement absents), ils deviendront désormais plus agréables et plus sûrs pour les piétons. La commune a d’ores et déjà pris de premières mesures visant à améliorer la qualité de vie dans la zone industrielle en aménageant des trottoirs et en plantant des arbres supplémentaires le long des voies publiques.
Futurama a ainsi toutes les chances de devenir le centre névralgique de toute la zone industrielle. Une offre de restauration attrayante à midi et, plus tard, également en soirée, accompagnera la transformation. Ainsi, il se pourrait qu’à l’avenir, le jardin situé sur le toit soit mis à la disposition du public en dehors des heures de travail. Des showrooms pour les entreprises implantées, des espaces de coworking et des micro-appartements de type MOVEment devraient insuffler de la vie et permettre de diversifier encore les usages. En attendant, quelques années peuvent encore s’écouler, mais la production bat déjà son plein au rez-de-chaussée et au sous-sol.



















