Zwischen Identität und Flexibilität
An der Zürcher Theaterstrasse gelingt der Spagat zwischen flexibel vermietbaren Flächen und einer ausdrucksstarken Architektur an einer der prominentesten Adressen der Stadt.
Die Bauarbeiten an der Theaterstrasse 12 in Zürich laufen derzeit auf Hochtouren. Das Geschäftshaus zwischen Opernhaus und Bellevue ist eingerüstet und in ein petrolfarbenes Tuch gehüllt. Der Umbau wird das Erscheinungsbild komplett verändern, und auch die Erinnerungen an das 1973 von Werner Gantenbein erstellte Originalgebäude drohen bereits zu verblassen: Über dem verglasten Erdgeschoss und dem markanten Vordach präsentierte es eine flach gestaltete Fassade aus rötlichen Waschbeton-Elementen, die das erste Obergeschoss vollständig umschlossen. Die darüberliegenden Fensterreihen waren in eine vertikale Struktur eingebunden und fielen durch ihre gerundeten Ecken auf. Bekannter als die Architektur waren die darin untergebrachten Warenhäuser; erst der ABM und später dessen Mutterhaus Globus, ergänzt durch Büroflächen auf den oberen Geschossen.



Verzicht auf Transparenz im Innern
Nach knapp fünfzig Jahren war eine Gesamtsanierung fällig, und die Besitzerin PSP Swiss Property lobte einen Studienauftrag für die Renovation und den Umbau der Liegenschaft aus, zu dem sechs Architekturbüros eingeladen waren. Wie das Geschäftshaus zukünftig aussehen soll, hat Jessenvollenweider Architektur aus Basel erdacht: In ihrem Bericht würdigt die Jury die auf mehreren Ebenen klugen Eingriffe des Siegerprojekts und den Verzicht auf eine Inszenierung der prominenten Platzfront, die nicht der Bedeutung des Hauses entsprechen würde. Mit diesen Worten spricht sie eine der zentralen Herausforderungen an – die Rolle des zeitgenössischen Geschäftshauses richtig einzuordnen und ihm einen angemessenen Ausdruck zu geben, der einerseits zur Nutzung und andererseits zur prominenten Lage am Sechseläutenplatz passt.
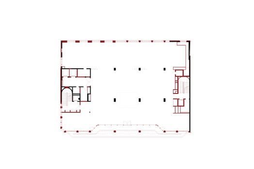
«Wir wollen dem Haus einen spezifischen Charakter verleihen und es gleichzeitig möglichst variabel gestalten», erklärt Ingemar Vollenweider. Dass es sich dabei um einen Balanceakt handelt, zeigte sich schon bald. Das Architekturbüro schlug mit seinem Projekt «Grüner Heinrich» ursprünglich vor, die scharfe Trennung der Geschosse im Innern aufzuheben. Eine kleeblattförmige Öffnung sollte die drei öffentlich zugänglichen Etagen miteinander verbinden und dazu einladen, sich mittels Wendeltreppe oder Glaslift ins erste Unter- oder Obergeschoss zu begeben. Darüber fand die Öffnung eine reduzierte, kreisförmige Fortsetzung und reichte bis zum Dach über dem fünften Obergeschoss. Obwohl die Trennung der Büroetagen gewährleistet war, zeigte sich, dass die Transparenz in der Vertikalen eine gewagte These war. Während die Architekturschaffenden damit neue Verkaufs- und Bürokonzepte ermöglichen wollten, bot das Konzept PSP Swiss Property zu wenig Flexibilität bei der Vermietung. «Die aktuellen Herausforderungen in der Retailbranche zeigen sich darin, dass Atrien und Lichthöfe im Innern von Geschäftshäusern unter Druck geraten, während alle Mietparteien einen Bezug zur Fassade wünschen», erklärt Ingemar Vollenweider die Auswirkungen auf die Architektur. Dies ganz im Gegensatz zur Entstehungszeit der Liegenschaft, als das erste Obergeschoss keine Fenster zum Platz aufwies, da Tageslicht für ein Warenhaus als unvorteilhaft galt.
Das zeitgenössische Geschäftshaus gibt sich extrovertiert
Während das Innenleben nach Abschluss des Studienauftrags stark überarbeitet wurde und letztlich nur die untersten beiden Geschosse über eine vertikale Öffnung miteinander verbunden sind, hat sich der Ausdruck des Hauses im Verlauf der weiteren Planung kaum verändert. Statt im Innern mehr Transparenz zu schaffen, öffnet es sich in erster Linie gegen aussen. Nicht nur sein Fensteranteil vergrössert sich bedeutend, auch über Veränderungen der Volumetrie gelingt ein stärkerer Bezug zum Aussenraum. Ein zentrales Element, das dem Gebäude Öffentlichkeit verleiht, ist die Terrasse auf Höhe des ersten Obergeschosses, von wo die Nutzenden über den Sechseläutenplatz bis zum See blicken können. Die westliche Gebäudeecke wird abgeschrägt, womit sie auf den Erker des Nachbargebäudes reagiert und das Haus Richtung Bellevue orientiert.

«Die Tatsache, dass es sich um ein liegendes Volumen handelt, stellt für die Gestaltung der Platzfassade eine Herausforderung dar», so Ingemar Vollenweider. Dem Gebäude mittels Risaliten eine vertikale Dimension zu verleihen, erschien den Architekturschaffenden aber nicht angemessen für ein zeitgenössisches Geschäftshaus. So suchten sie nach einem anderen Weg, um die Fassade stärker zu gliedern. Indem nur jede zweite Stütze durch ein Betonelement betont wird, ringen sie dem kleinteiligen Rhythmus des vorhandenen Fassadenrasters eine gewisse Grosszügigkeit ab, ohne dabei die tragende Fassadenstruktur zu vernichten. Die übrigen Stützen werden durch ein filigranes, kreuzförmiges Aluminiumprofil in der Fassade abgebildet. Horizontale, leicht ondulierende Bänder aus Ortbeton fassen die vertikalen Elemente und sorgen für zusätzliche Tiefe im Fassadenbild. Dieses kombiniert den muralen Charakter der angrenzenden Gebäude mit einer neuen Bewegung und Leichtigkeit, die zur Lage am Zürichsee passen.
Auf der Fassadenansicht des Gebäudes, die im Rahmen des Studienauftrags entstanden ist, titelt ein Schriftzug auf Höhe des ersten Obergeschosses «Grüner Heinrich». Damit bezieht sich Jessenvollenweider Architektur einerseits auf die Geschichte des Ortes: Das gleichnamige Café war im Vorgängerbau untergebracht, der 1971 abgebrochen wurde. Der Projekttitel weist aber auch in die Zukunft, da die Farbe Grün die erneuerte Fassade prägen wird: Die vorfabrizierten Betonelemente sind mit einem grünlichen Zuschlag aus Andeerer Granit versehen, die Fensterbrüstungen werden aus dem Walliser Naturstein Verde Salva gefertigt.
Mehr als eine Seite
Die Fassade zum Sechseläutenplatz wird dereinst das Bild prägen, das sich in die Köpfe der Passantinnen und Passanten einnistet. Doch mit dem Umbau gewinnt auch die hofseitige Fassade an Bedeutung. Dort zeigt sich, dass die einzelnen Geschosse über unterschiedliche Ausdehnungen verfügen. Ein 1983 erstellter Vorbau erweitert die Flächen des ersten und des zweiten Obergeschosses. Aus dem Stahlskelett, das ihm zugrunde liegt, werden zwei Lichthöfe ausgeschnitten. So entstehen mehrere begrünte Terrassen, die den Bezug der Büroarbeitsplätze zur Umgebung stärken und attraktive Pausenflächen bieten. Denn nicht nur die Bedürfnisse der Kundschaft eines Warenhauses haben sich in den letzten Jahrzehnten verändert, sondern auch diejenigen von Büroangestellten.
Kaum wahrgenommen werden dürften zukünftig die beiden Terrassen, die sich beidseitig des Dachgeschosses über die gesamte Gebäudelänge aufspannen. So verfügt das umgebaute Geschäftshaus über eine grosse Zahl an Aussenräumen, die man an einer solch zentralen Lage nicht erwarten würde.
Jessenvollenweider Architektur
mit Sitz in Basel wurde 1999 von Anna Jessen und Ingemar Vollenweider gegründet. 2019 kam Sven Kowalewski als dritter Partner dazu. Das Architekturbüro zeigte schon früh Interesse an der Auseinandersetzung mit dem Bestand. Jüngere Beispiele dafür sind der Um- und Erweiterungsbau des Hauptsitzes der Zürcher Kantonalbank aus dem Jahr 2015 oder die 2020 abgeschlossene Sanierung und Erweiterung der Schulanlage Auen in Frauenfeld. Nebst Schul- und Verwaltungsbauten hat Jessenvollenweider Architektur auch zahlreiche Wohnbauten realisiert, darunter 2014 vier Wohnhäuser am Schaffhauserrheinweg in Basel. 2021 wurde der Neubau für das Basler Amt für Umwelt und Energie fertiggestellt, der neue Massstäbe hinsichtlich Energieeffizienz setzt. → jessenvollenweider.ch
Zum Interview mit Ingemar Vollenweider
Im Interview «Wir müssen einen Schweizer Weg finden» spricht Ingemar Vollenweider über die Erfahrungen, die er und sein Büro mit dem von der Halter AG praktizierten Design-Build-Modell machen.










